当前位置: 江西视窗首页 >> 家居
拥有超大庭院的三层新亚洲风格别院,由内而外的经典气派
发表时间:2020-09-02 09:34:03  阅读:-   来源:互联网

三层新亚洲风格大别院,大庭院围绕,东边入户庭院主要布局停车场,南边和西边的庭院做了丰富的景观小品,给室内空间营造很好的景观面;主体别墅占地180方,大开间新亚洲风别墅造型非常气派,室内布局也是方正敞亮,挑空客厅、开敞弧形楼梯等舒适大气的设计,都让别墅由内而外的体现着新亚洲风格的经典气派~

拥有超大庭院的三层新亚洲风格别院,由内而外的经典气派

南立面透视

拥有超大庭院的三层新亚洲风格别院,由内而外的经典气派

西南角度鸟瞰

拥有超大庭院的三层新亚洲风格别院,由内而外的经典气派

东南角度鸟瞰

拥有超大庭院的三层新亚洲风格别院,由内而外的经典气派

东南角度透视

拥有超大庭院的三层新亚洲风格别院,由内而外的经典气派

东立面透视

拥有超大庭院的三层新亚洲风格别院,由内而外的经典气派

北立面透视

拥有超大庭院的三层新亚洲风格别院,由内而外的经典气派

西立面透视

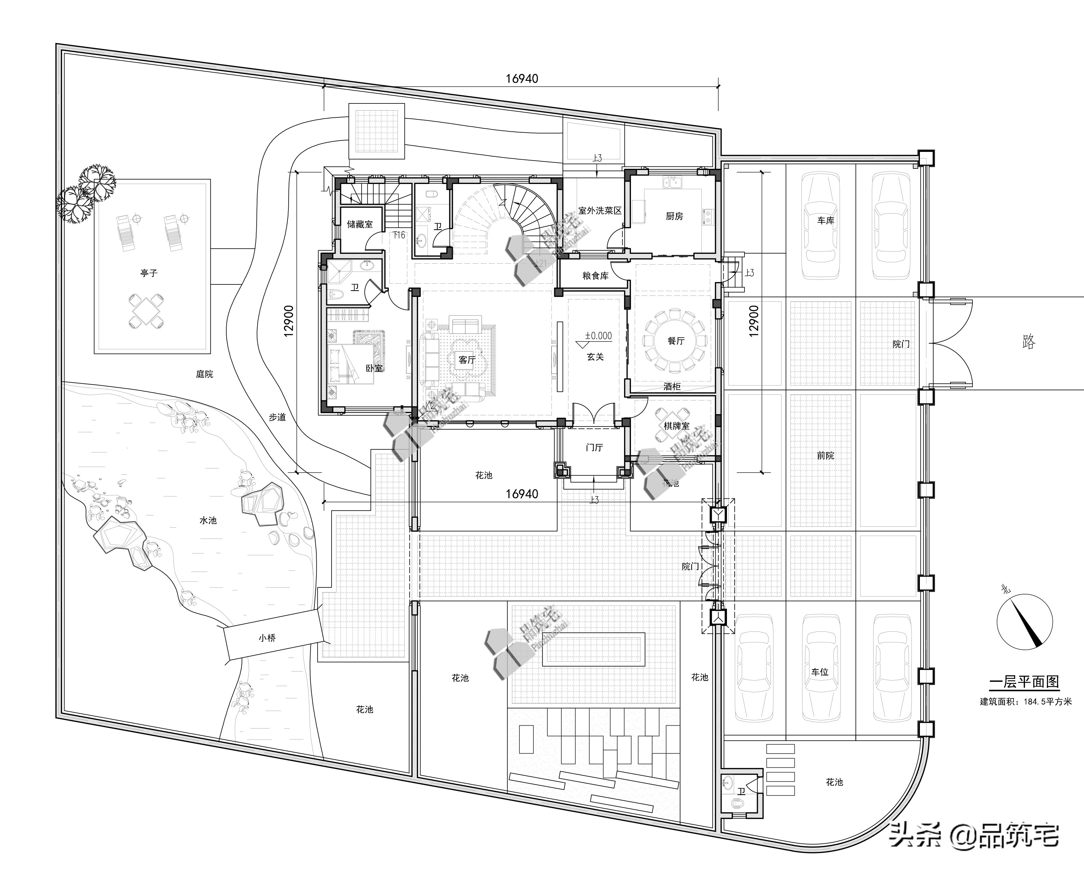
拥有超大庭院的三层新亚洲风格别院,由内而外的经典气派

一层平面:东边院门,东边庭院主要做停车用,再过一道景观院门到主院,西边庭院做了小桥流水、步道亭子等丰富的景观小品;主体别墅南边门厅入户,进门后玄关,东边棋牌室、厨房、餐厅,有侧门通往东边庭院停车场;玄关西边是挑空大客厅、弧形开敞楼梯,楼梯旁设公卫;西边一间卧室套房,北边储藏室、小楼梯通往局部地下室;

拥有超大庭院的三层新亚洲风格别院,由内而外的经典气派

二层平面:东边一间主卧大套房(带书房、衣帽间、卫生间、阳台);西边一间卧室套房(带书房、衣帽间、卫生间);

拥有超大庭院的三层新亚洲风格别院,由内而外的经典气派

三层平面:东边南向露台,北边一间卧室;西边一间卧室套房(带书房、衣帽间、卫生间);中间南向一间卧室(带连阳台)、一间小客厅;


推荐阅读:贵州之窗

图片推荐
关于我们 | 联系我们 | XML地图 | 网站地图TXT | 版权声明

Copyright 2020 江西视窗 版权所有 本网拒绝一切非法行为 欢迎监督举报 如有错误信息 欢迎纠正